

クリックすると大きな画像がご覧いただけます。
2,130万円
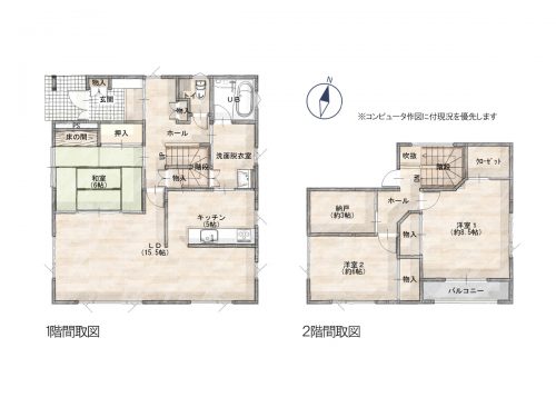
■約20帖のLDKで対面キッチン ■各居室収納あり ■回遊性のある間取で家事や移動がスムーズ
■JRバス「東共栄2丁目」停徒歩2分 【リフォーム内容】■キッチン・ユニットバス・洗面台・トイレ交換 ■給湯ボイラー交換 ■照明器具・靴箱・TV付インターホン交換 ■フロア張替、CF貼替、タタミ表替、クロス貼替 ■外壁張替、屋根塗装 【周辺環境】■コープさっぽろきたひろしま店・・1200m ■JA北広島農産物直売所・・1100m ■セブンイレブン朝日町店・・900m ■セイコーマート北広島中央店・・1100m ■北広島元町郵便局・・1100m ■北海道銀行北広島支店・・2400m ■北洋銀行北広島中央支店・・2500m ■北広島市役所・・1400m ■エスコンフィールド・・2000m
所在地
北広島市東共栄3丁目7番地5(住居表示) [Googleマップで見る]
所在地 | 北広島市東共栄3丁目7番地5(住居表示) |
間取り | 3LDK+納戸 |
交通 | JR千歳線「北広島」駅バス乗車16分、JRバス「東共栄2丁目」停徒歩2分 |
土地面積 | 237.73㎡(71.91坪) |
構造 | 木造亜鉛メッキ鋼板葺2階建 |
建物面積 | 113.44㎡(34.31坪) |
築年月 | 平成9年11月 |
駐車場 | 1台可 |
用途地域 | 1種低層 |
建ぺい率 | 40% |
容積率 | 60% |
現況 | 空家 |
引渡し日 | 即 |
接道 | 北側公道幅員12.00mに間口12.87m接道、西側公道幅員8.00mに間口13.88m接道 |
学区 | 北の台小学校(1000m)、東部中学校(400m) |
取引形態 | 専任 |
設備 | 上下水道、北海道電力・他、個別プロパン、システムキッチン、ユニットバス、ウォシュレット、洗面化粧台、給湯ボイラー、FFストーブ、TV付インターホン、靴箱 |
備考 |