
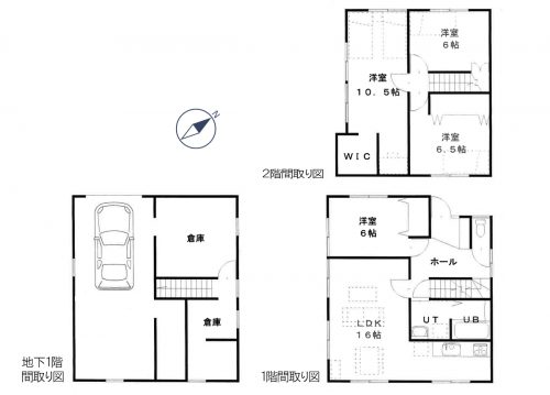
■北西向き建物面積約47坪
■LDK16帖、各6帖以上の居室で収納有
■前面8m道路で組込車庫1台可
■車庫隣に広めの倉庫有
クリックすると大きな画像がご覧いただけます。

1,580万円
■北西向き建物面積約47坪■LDK16帖、各6帖以上の居室で収納有■前面8m道路で組込車庫1台可■車庫隣に広めの倉庫有■スーパー徒歩7分、コンビニ徒歩2分、バス停徒歩2分、小学校徒歩2分
【周辺環境】■コープさっぽろ北郷店・・550m ■業務スーパー北郷店・・600m ■イオン北郷店・・650m ■セブンイレブン北郷2条店・・90m ■サンドラッグ北郷店・・65m ■北海道銀行北郷支店・・600m ■北洋銀行北郷支店・・650m
所在地
札幌市白石区北郷3条6丁目1番3号(住居表示) [Googleマップで見る]

| 所在地 | 札幌市白石区北郷3条6丁目1番3号(住居表示) |
| 間取り | 4LDK |
| 交通 | JR函館本線「白石」駅徒歩9分、 地下鉄東西線「白石」駅乗車15分 中央バス「北郷2条6丁目」停徒歩2分 |
| 土地面積 | 99.17㎡(29.99坪) |
| 構造 | 木・鉄筋コンクリート造亜鉛メッキ鋼板葺地下1階付2階建 |
| 建物面積 | 155.52㎡(47.04坪) |
| 築年月 | 昭和51年10月 |
| 駐車場 | 組込車庫1台可 |
| 用途地域 | 準住居 |
| 建ぺい率 | 60% |
| 容積率 | 200% |
| 現況 | 入居中 |
| 引渡し日 | 相談 |
| 接道 | 北西側公道幅員8.00mに間口9.09m接道 |
| 学区 | 北郷小学校(350m)、北白石中学校(1300m) |
| 取引形態 | 専任 |
| 設備 | 上下水道、北海道電力・他、個別プロパン、 システムキッチン、ユニットバス、ウォシュレット、 洗面化粧台、給湯ボイラー、TV付インターホン |
| 備考 | ※シャッター寸法:W2500×H1900 |